借りるborrow
店舗
パティオ大手門 2-3
2026.5月中旬竣工予定 感度の高い大人が集まるエリア。舞鶴公園を一望できます。
| 所在地 |
福岡県福岡市中央区大手門1丁目 1-1(仮)
| ||||
|---|---|---|---|---|---|
| 交通 | 福岡市空港線「赤坂駅」 徒歩:5分 | ||||
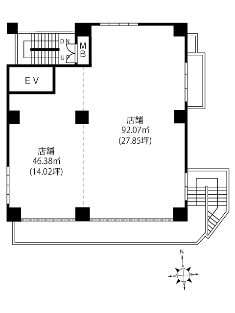
| 賃料 | 262,361円(税込) | 共益費 | 無 | 使用部分面積 | 46.38㎡ (約14.03坪) |
| 敷金 | 8ヵ月 | 階数 | 2階 |
|---|---|---|---|
| 坪単価(賃料) | - | 坪単価(共益費) | - |
| 構造 | RC造 | ||
| 築年月 | 令和8年5月竣工予定 | 駐車場 | 無 |
| 契約期間 | 普通借家契約2年 | 保険等 | - |
| 現況 | 未完成 | 解約日 | - |
| 取引形態 | 一般媒介 | ||
| 設備 | - | ||
| 物件ポイント | - | ||
| 備考 | ・1Fはカフェが入居予定 ・スケルトン渡し | ||
(※営業時間外は翌営業日の対応となります)
